
松山市 工場|思い出の工場を自宅へリノベーション
ご両親が営んでいた印刷工場。
閉業後は倉庫として使われていましたが、その姿を見るたびにどこか寂しさを感じていたお施主様。
「もう一度、この場所に灯りをともしたい」――そんな想いから、
工場をリノベーションし、新たな“住まい”として生まれ変わらせることを決意されました。
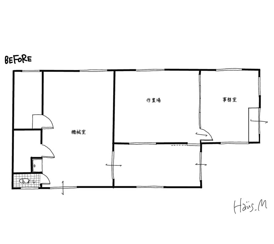
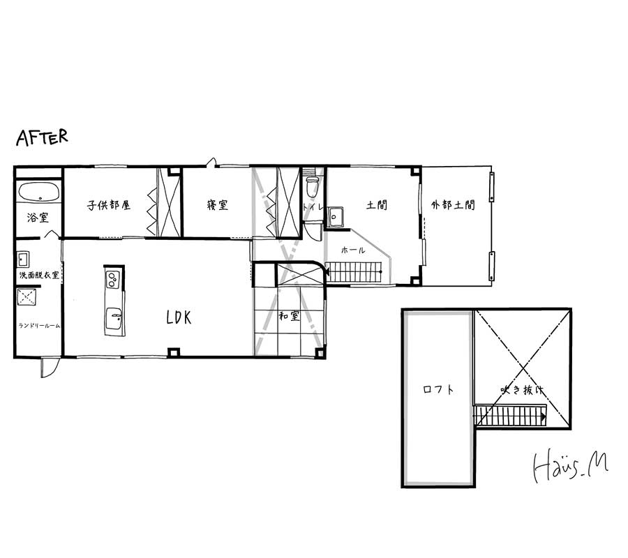
間取り
作業場と事務室、最低限の水回りのみのシンプルな工場。
所々に「工場らしさ」を残しつつ、温かみのあるこだわりのマイホームへと生まれ変わりました。
室内写真
アウトドアが趣味のご家族。
玄関は思い切って広い土間にして、第二のリビングとして楽しめる空間にしました。
お子さんが寝た後、夜のコーヒー時間を楽しまれているそうです。
ビフォーアフター
- before:殺風景なTHE事務所
- after:土間リビングとして家族お気に入りの場所に
概要
ご両親が営まれていた印刷工場。
多くの印刷物を世に送り出してきた自慢の場所は、リノベーションを経て自慢のマイホームへと生まれ変わりました。
ご主人の理想の間取りをベースに設計。
アウトドアが好きなお2人らしい広い土間玄関、洗濯物が楽になるランドリースペース、秘密基地のような吹き抜けのロフト…
唯一無二の楽しいお家となりました。
お引っ越し後、早速土間を満喫して頂いているとのこと!
冬はストーブにあたりながら、風の気持ちいい季節は窓から入る空気を楽しみながら、ご家族の大切な時間を刻んで頂ければ幸いです。
物件DATA
| 建物種別 | 戸建て(鉄骨造) |
|---|---|
| 施工費用 | |
| 施工期間 | 4.5ヶ月 |
| 施工面積 | |
| 施工部位 | 土間玄関、LDK、洗面、ランドリースペース、浴室、居室、トイレ、玄関テラス |



















