Haus_D

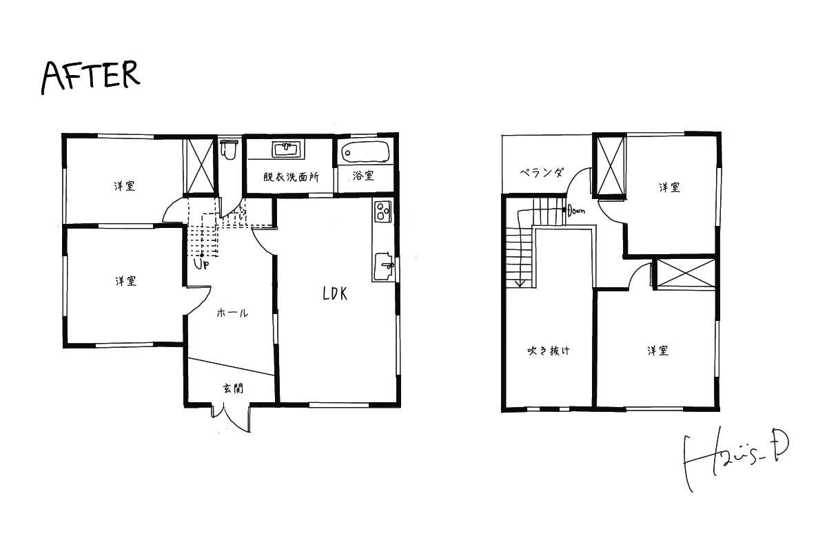
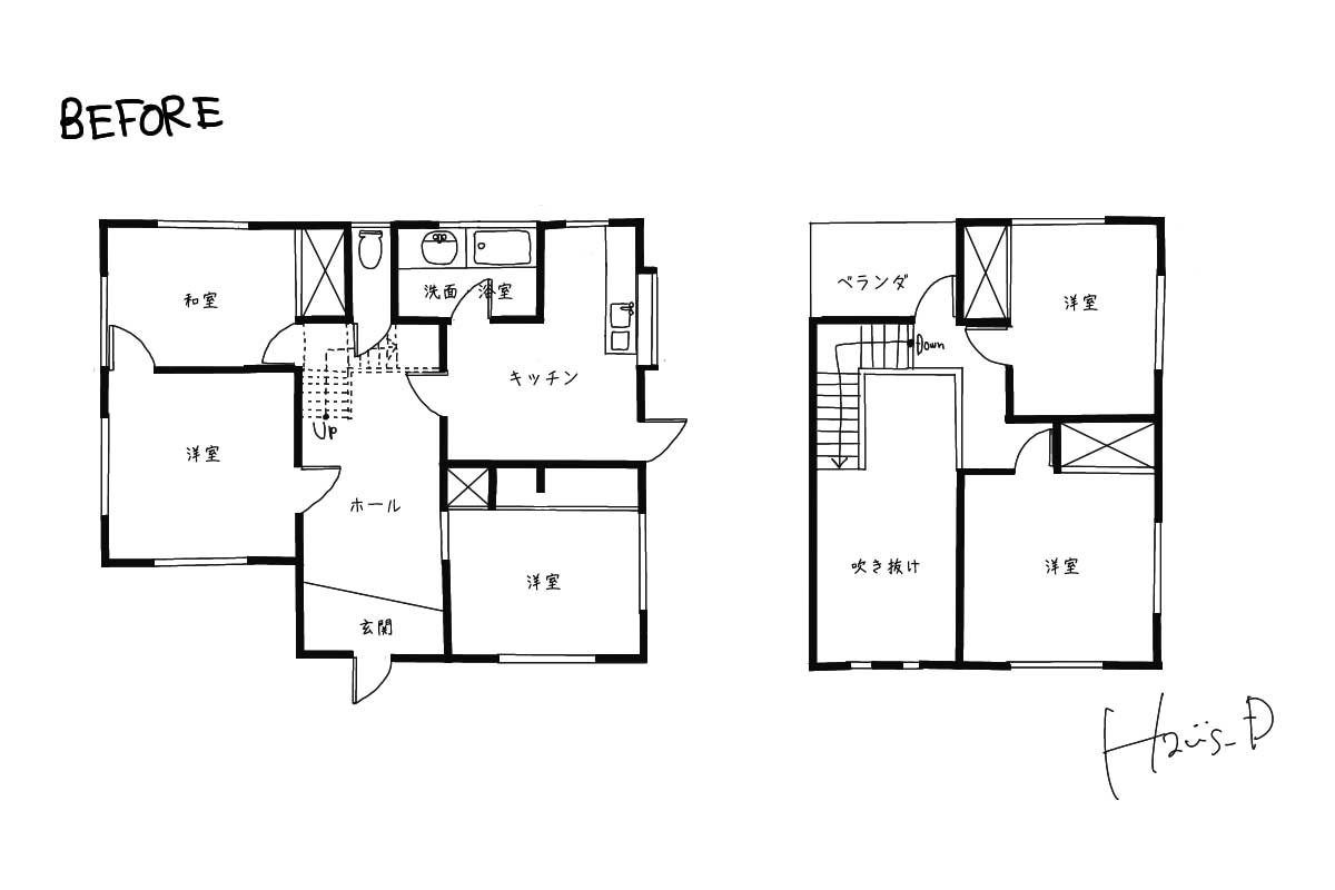
ビフォーアフター

 

概要

松山市の旧北条市。
小高い山の中腹に位置するこの家からは
町の様子と海を眺めることができます。

建築当初はモダンでオシャレな家だったんだろうなと思いを馳せながら
耐震化工事、LDKを中心としたリノベーションを行いました。

築年数の経っている家だからこそ
色ムラの美しいアンティーク調のタイルや
ホテルライクな洗面室が違和感なくマッチしています

物件DATA

建物種別戸建て(木造)
施工費用
施工期間3ヶ月
施工面積
施工部位LDK、居室、トイレ、浴室、洗面、玄関

電話

お問い合わせ・資料請求

スマホ電話
スマホお問合せ・資料請求